Scheda tecnica

  • Riferimento: 4112
  • Tipo Locazione: Vendita
  • Tipologia: Casa Singola
  • Provincia: Macerata
  • Città: Civitanova Marche
  • Zona: San Marone
  • Superficie: 300m2
  • Superficie commerciale: 360m2
  • Vani: 6
  • Allegati:  Link 1  -  Link 2  -  Link 3
  • Visualizzazioni annuncio: 695

Descrizione

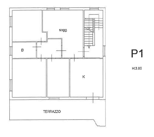
Rif. 4112. Stai cercando una casa singola in zona San Marone? Magari con possibilità di creare atri 2 appartamenti? Ecco quello che fa per te: Casa singola, suddivisa su 3 livelli e composta, da: piano terra, laboratorio di c.a 120 mq con possibilità di creare due appartamenti, scala interna che collega all'abitazione principale del primo piano, con stessa metratura composta da ingresso, cucina abitabile, soggiorno, disimpegno notte, 2 camere matrimoniali, una camera singola e un bagno oltre ad una terrazza di mq. 30 c.a. Andiamo al piano secondo dove troviamo la soffitta (attualmente allo stato grezzo), utilizzabile come uso rip. L'immobile si presta per essere utilizzato da uno o piu' nuclei Familiari. Vero Affare € 218.000,00 trattabile . Chiamaci per qualsiasi ulteriore info ! Devi vendere il tuo immobile? Valutiamo la tua permuta o affidaci l'incarico per la vendita, abbiamo moltissime richieste da soddisfare; se devi prendere il mutuo abbiamo degli istituti di credito affiliati con erogazioni sicure veloci e senza sorprese fino al 100%. ORA DAVVERO NON HAI PIÙ SCUSE ! Ti aspettiamo in agenzia

Richiesta informazioni

Questo sito è protetto da reCAPTCHA e si applicano le norme sulla privacy e i termini di servizio di Google.

Ti potrebbero interessare anche questi immobili